Homewood Plantation
Homewood Mansion in 1936
General information
StatusBurnt down in 1940
LocationNatchez, Mississippi, U.S.
Completed1860

Homewood Plantation was a historic plantation with a mansion of the same name located on it in Natchez, Adams County, Mississippi. Built in 1860 as a wedding present for the Southern belle Catherine Hunt, the daughter of millionaire planter David Hunt, the mansion remained unscathed during the American Civil War of 1861-1865. By the early twentieth century, it was used as a shooting location for 1915 classic film The Birth of a Nation. The author Stark Young used Homewood as the setting of a wedding in his 1934 novel So Red the Rose (pages 414 and 415).[1] The mansion burnt down in 1940.

Location

The name "Balfour" on this map - just above and to the right of the city of Natchez - is where Homewood is located.

Homewood was located north of the Natchez, Mississippi city limits on Pine Ridge Road.[2]

History

Homewood, by Frances Benjamin Johnston, 1938. All bricks were made on premises. Had a mahogany fanspread stairway

Homewood was the antebellum plantation home of William S. Balfour and his wife, Catherine Hunt.[3] It adjoined Catherine's sister Charlotte's Lansdowne Plantation.[3] The 600 acre Homewood Plantation was a wedding gift to William and Catherine from Catherine's millionaire, planter father David Hunt.[4] William S. Balfour's father, William L. Balfour of Madison County, Mississippi, was one of the richest Mississippi antebellum planters.[4] He was a founder of the Mississippi College at Clinton.[4] James Buchanan had picked him to run as his vice-president in the 1857 presidential election; however, he died before the election.[2]

William and Catherine's mansion on Homewood Plantation was the suburban Natchez equal of nearby Stanton Hall, which was in the town of Natchez.[5] The mansion, designed by Scottish architect James Hardie, took the five years from 1855 to 1860 to build.[6][7] While it was being built, William and Catherine lived on his Issaquena County, Mississippi Plantation.[4] This 1,400 acre plantation was known as Fairland and was near the Hunt family's Issaquena County plantations.[8] William had 177 slaves in Issaquena County in 1860.[9] The Balfours moved to Homewood in 1860 with their six children.[3] During the American Civil War of 1861-1865, William served in the Confederate States Army as a Major, and Catherine left by carriage with her children for about one year, moving from place to place.[3] The family returned after the war to find that Homewood was intact.[3] Without the slave labor from before the war, the Balfour's wealth began to decline.[3] Generally, Catherine and her siblings used Cincinnati, Ohio real estate, inherited from her father David, mortgages on their plantations, and whatever else they had to support themselves after the war.[3]

The Balfours sold Homewood to Mr. and Mrs. William J. Kaiser of Natchez in 1907.[2][7] The Kaisers ran a dairy farm on the plantation.[2] Some scenes from the 1915 film The Birth of a Nation were made on the grounds and porches of Homewood.[6] Beginning in 1932 Homewood became well known, because it was on the annual Natchez Pilgrimage houses tour.[2]

When their children were grown, the Kaisers sold the mansion and 73 acres in 1937 to Mr. and Mrs. Swan of New York, who had visited Homewood on a Pilgrimage tour, for $35,000.[2][10] Mrs. Swan caused a lot of talk in Natchez.[2] She and her husband, who was much younger, spent huge sums modernizing the mansion and expanding the gardens during the last years of the Great Depression.[2] Their dogs slept on Beautyrest mattresses.[2] The mansion caught fire in 1940.[2] As it was burning to the ground, Mrs. Swan, with a bottle of whiskey in her hand, slowed the firemen's efforts by ordering them off the property.[10] People speculated that the Swans intentionally burned the mansion.[10] The Swans, however, collected $43,000 in damages from five insurance companies as a result of the fire and returned to live in New York.[10] The old antebellum kitchen dependency building, which survived the fire, has been remodeled for use as a residence.[10] The plantation was later sold to William D. Meriwether, Sarah J. Meriwether, and their children. The old carriage house, which also survived the fire, has been a residence and a clubhouse for the Natchez Country Club.[10]

Architecture

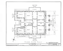
Floor Plan of the First Floor of Homewood Mansion

The Homewood mansion was about 72 by 96 feet.[2] It had five floors.[7] The basement had several rooms with fireplaces.[4] The first floor had six rooms.[2] The first floor rooms were divided by a center hall and a cross hall that ran just behind the two front rooms.[7] The library, front portion of the center hall, and the parlor could be combined into a 72 foot long ballroom, when the large solid mahogany pocket doors connecting them were opened, that stretched across the front of the house.[2][6] The second floor had a similar floor plan to the first floor.[2] The attic floor had a large center room surrounded by eight small storage rooms.[2][7] From the cupola and the adjoining widow's walk on top of the mansion, the town of Natchez could be seen in the distance.[2]

The mansion had two and one-half foot thick brick walls and thirty-five foot high, metal front porch columns with Ionic capitals.[3] The sidelight windows beside the front door had imported pink glass from Belgium.[11] Both sides of the mansion had two-story porches with metal lace-work railings.[3] The imported Cordovan marble fireplace mantles varied in color.[3][6] The library mantle was pink and grey.[11] The drawing room mantle was white.[11] The dining room mantle was pink with oxblood.[11] Each of the eight bedrooms had different shadings.[3] The interior doors were made of three inch thick mahogany.[11] A curved stairway with fan shaped steps and a black walnut railing was in the rear of the central hall and connected the first, second and attic floors.[11] A spiral staircase rose from the large center room of the attic to the cupola on top.[7]

A two-story kitchen flanked a rear corner of the mansion.[2] The grounds also contained a two-story carriage house made of brick.[2]

References

  1. Young, Stark (1934). So Red the Rose (3 ed.). C. Scribner's Sons. pp. 414, 415. Retrieved 2 September 2021.
  2. 1 2 3 4 5 6 7 8 9 10 11 12 13 14 15 16 17 18 Smith, Carolyn Vance (6 January 1985). "Mystery Shrouds the burning of Homewood". The Natchez Democrat.
  3. 1 2 3 4 5 6 7 8 9 10 11 Kane, Harnett T. Natchez on the Mississippi. New York: Bonanza Books. pp. 174–189.
  4. 1 2 3 4 5 Franks, Bob. "The Balfour Family". The Issaquena Genealogy and History Project. rootsweb/ancestry.com. Retrieved 20 October 2015.
  5. Miller, Mary Carol (2010). Lost Mansions of Mississippi. Jackson, Mississippi: Univ. Press of Mississippi. p. 15. ISBN 978-1617034213.
  6. 1 2 3 4 Moreland, George M. (January 18, 1925). "Rambling in Mississippi". The Memphis Commercial Appeal.
  7. 1 2 3 4 5 6 Matrana, Marc R. (2009). Lost Plantations of the South. Jackson: University Press of Mississippi. pp. 167–174. ISBN 978-1-57806-942-2.
  8. Mcfarland, A. "Map of plantations in Carrol sic Parish, Louisiana and Issaquena County, Mississippi. [Skipwith, Miss.: ?, 1860] Map". www.loc.gov. Library of Congress, Geography and Map Division. Retrieved 2 September 2021.
  9. Blake, Tom. "LARGEST SLAVEHOLDERS FROM 1860 SLAVE CENSUS SCHEDULES". rootsweb. Retrieved 2 September 2021.
  10. 1 2 3 4 5 6 Smith, Carolyn Vance (13 January 1985). "Mystery Surrounded the day of destruction". The Natchez Democrat.
  11. 1 2 3 4 5 6 Van Court, Catharine (1937). In Old Natchez. New York: Doubleday, Doran and Company. pp. 92–93.

31°34′36″N 91°22′13″W / 31.576563°N 91.370270°W / 31.576563; -91.370270

This article is issued from Wikipedia. The text is licensed under Creative Commons - Attribution - Sharealike. Additional terms may apply for the media files.